Er is volop keuze in levensloopbestendige woningen, elk met een eigen karakter en indeling. Zoek je een comfortabele woning waarin je alles gelijkvloers kunt wonen? Dan zijn deze levensloopbestendige woningen precies wat je zoekt. Met een ruime woonkamer en open keuken, een volwaardige slaapkamer en badkamer op de begane grond ben je helemaal voorbereid op de toekomst. Bekijk ze nu
Levensloopbestendige hoek- en tussenwoning
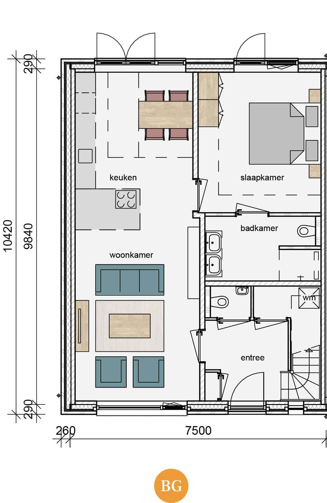
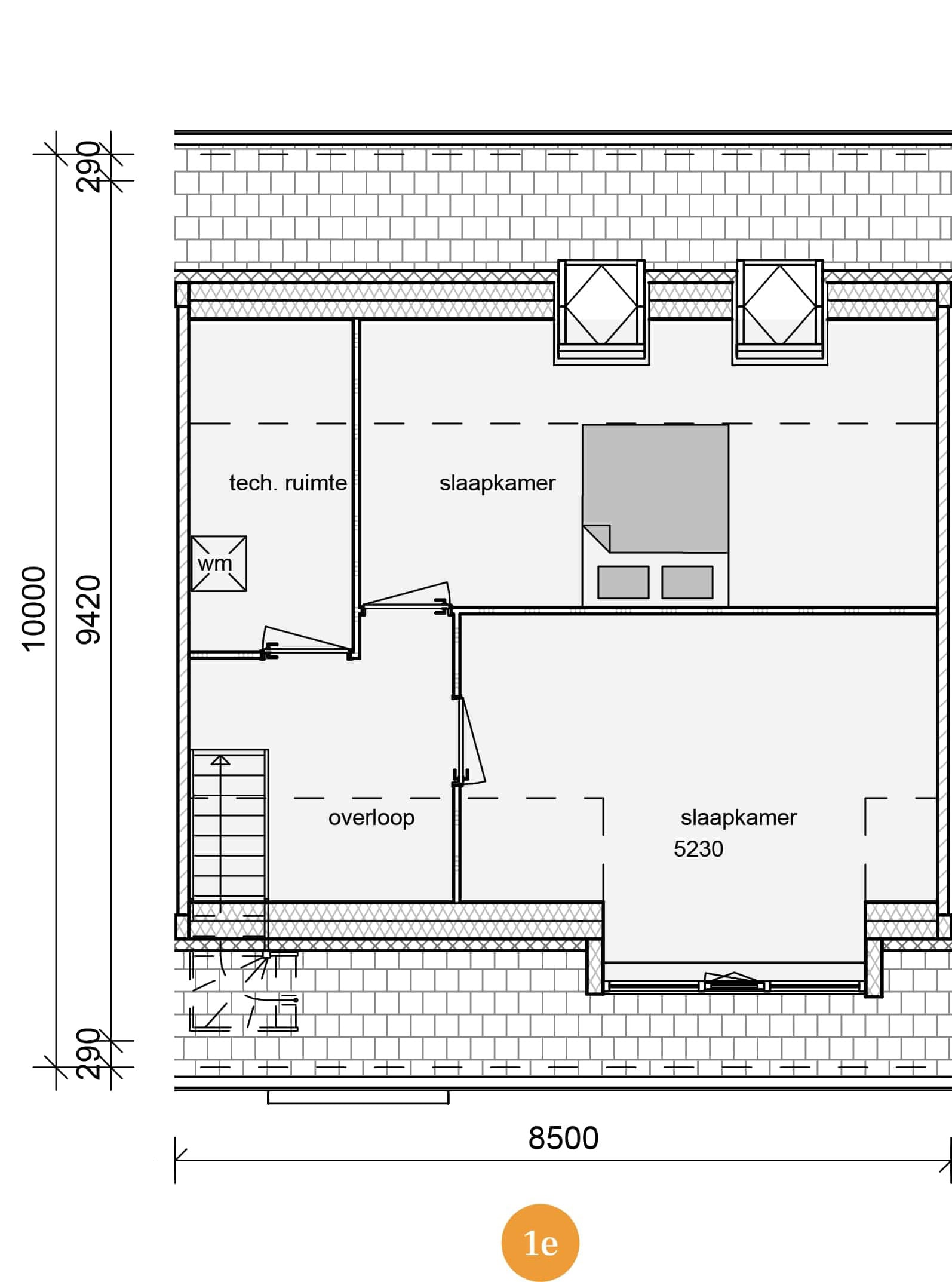
Type LL10
Levensloopbestendig en duurzaam wonen
- 121m² woonoppervlak
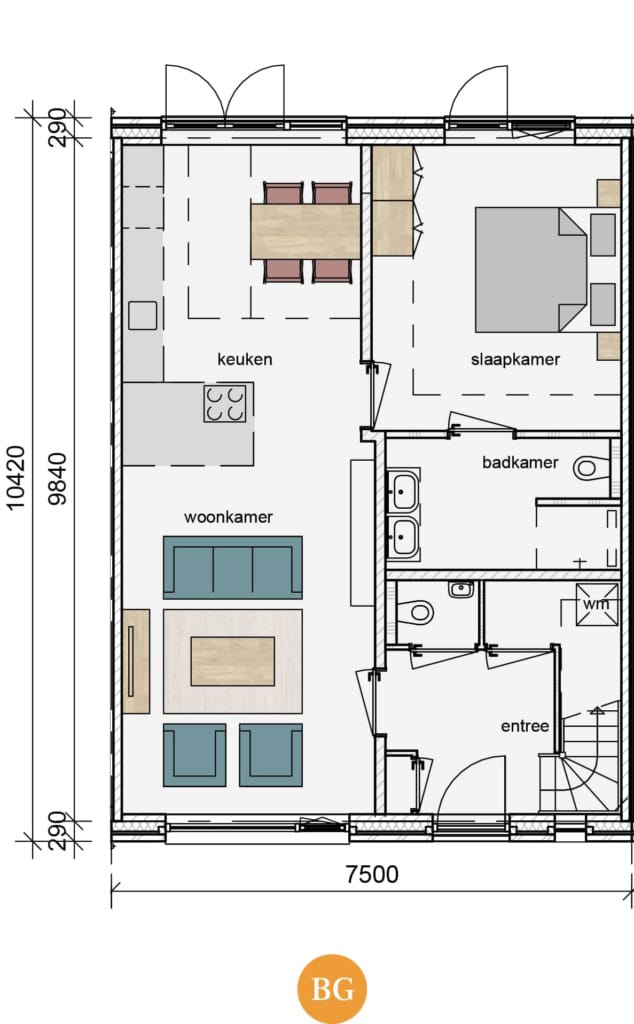
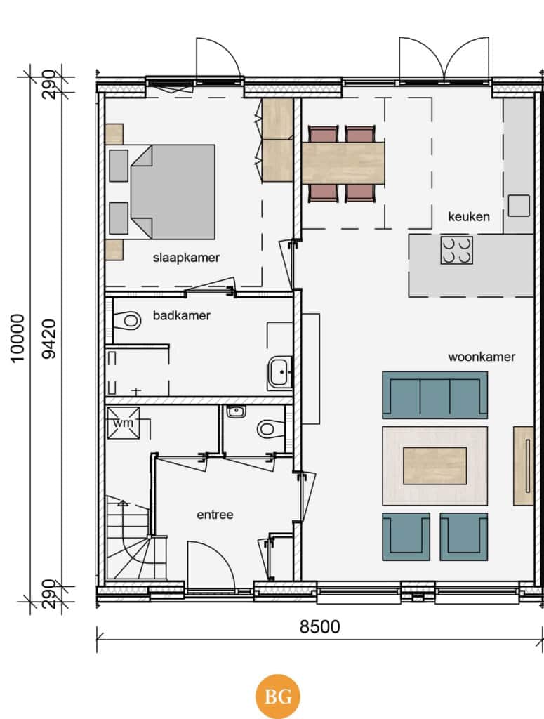
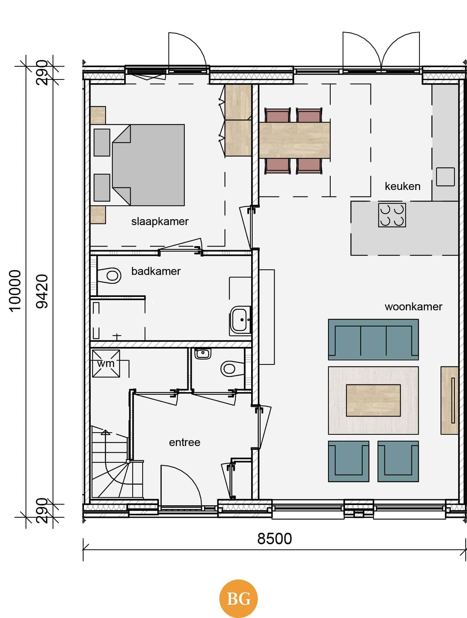
- Royale woonkamer met open keuken
- Volwaardige slaapkamer en badkamer op de begane grond
- Standaard uitgerust met 2 zonnepanelen inclusief thuisbatterij
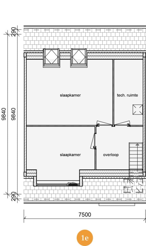
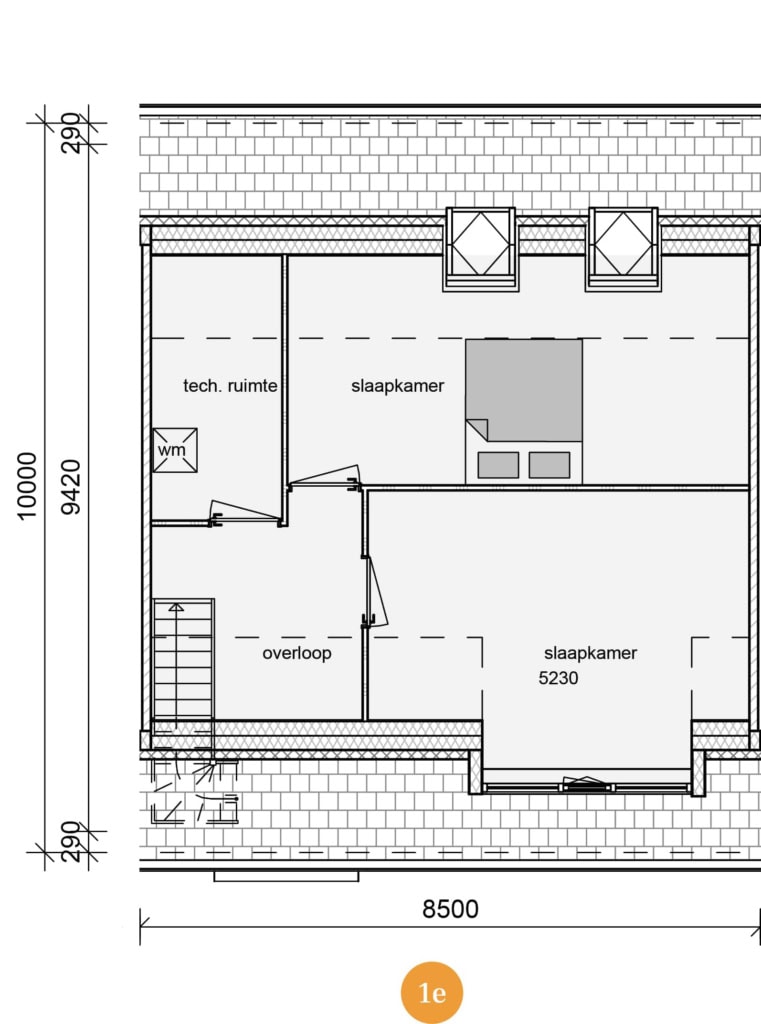
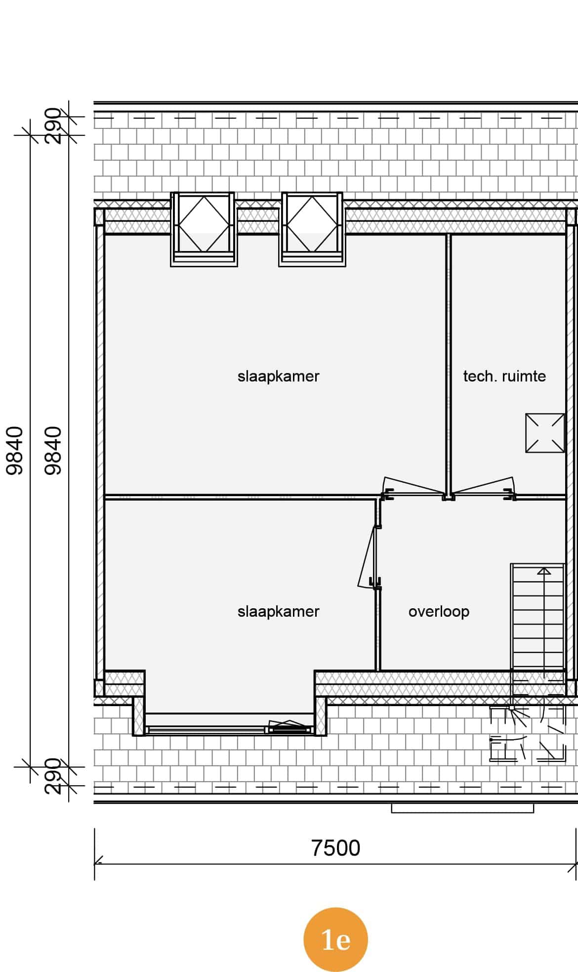
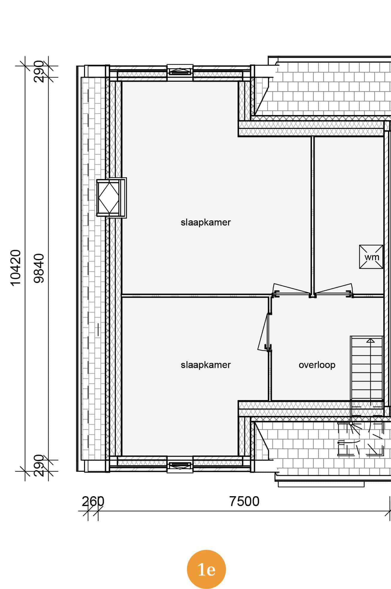
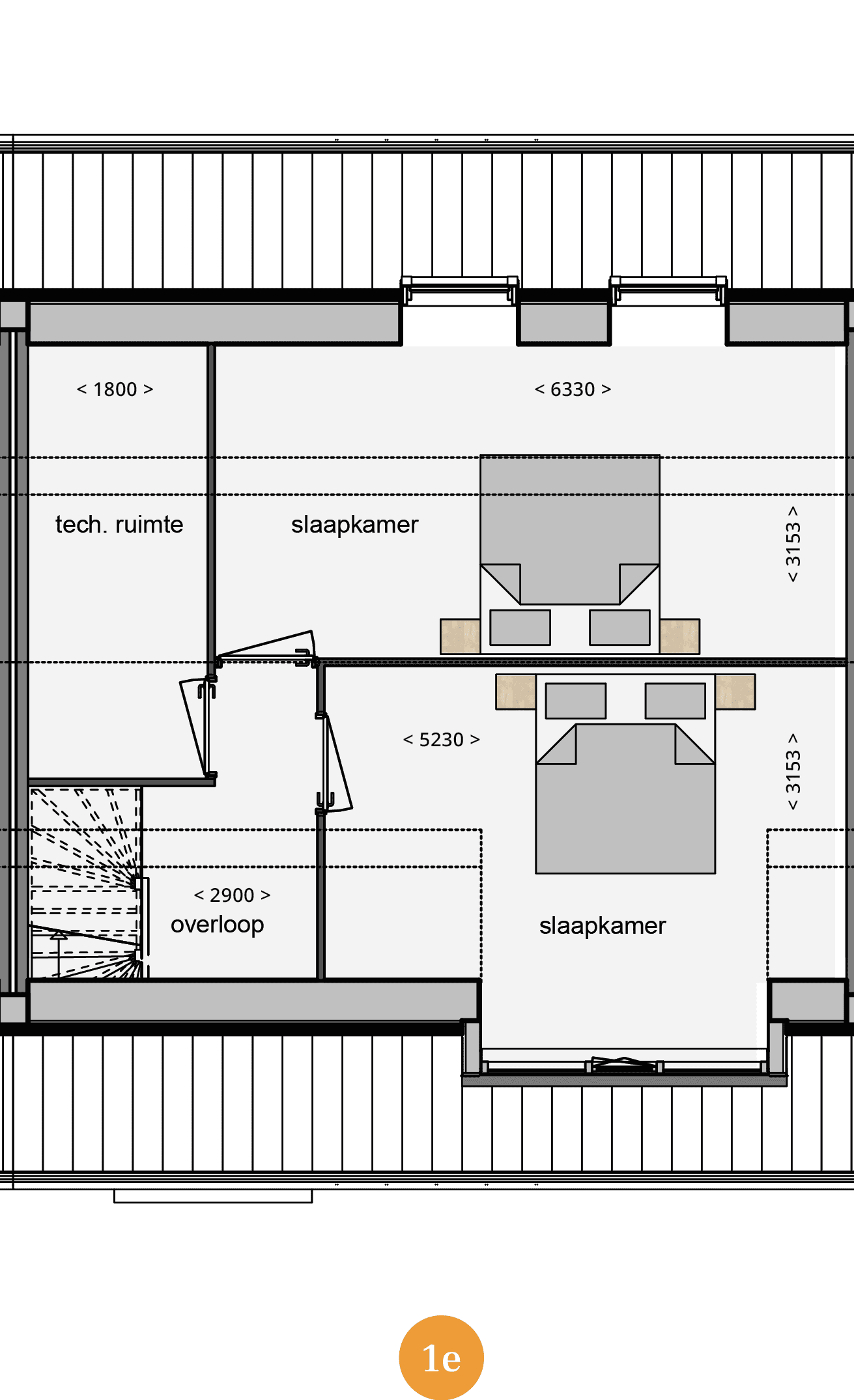
- Op de verdieping twee slaapkamers en mogelijkheid voor een tweede badkamer
- Volledig gasloos
Beschikbare bouwnummers: 46
Levensloopbestendige hoek- en tussenwoning
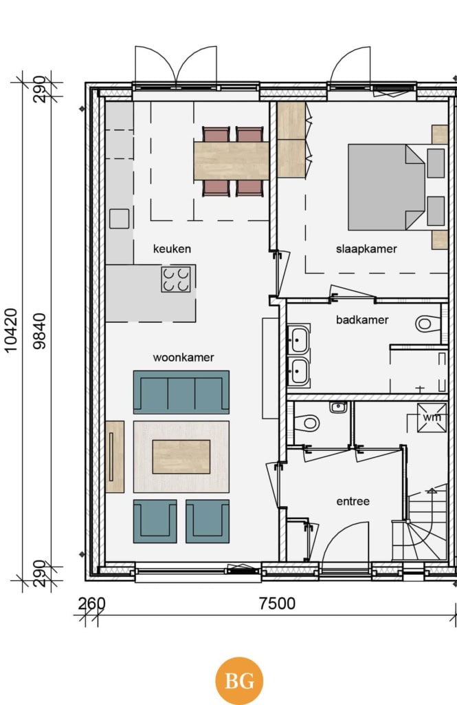
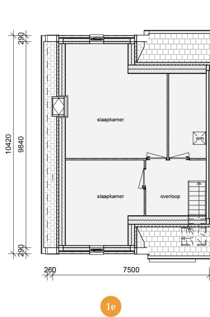
Type LL11
Verrassend veel ruimte
- 124m² woonoppervlak
- Royale woonkamer met open keuken
- Volwaardige slaapkamer en badkamer op de begane grond
- Standaard uitgerust met 2 zonnepanelen inclusief thuisbatterij
- Op de verdieping twee slaapkamers en mogelijkheid voor een tweede badkamer
- Volledig gasloos
Beschikbare bouwnummers: 51
Levensloopbestendige drie-onder-één-kapwoning
Type LL20
Royale woning met ruimte en comfort
- 131m² woonoppervlak
- Royale woonkamer met open keuken
- Volwaardige slaapkamer en badkamer op de begane grond
- Op de verdieping twee slaapkamers en mogelijkheid voor een tweede badkamer
- Standaard uitgerust met een thuisbatterij
- Voorzijde is voorzien van een dakkapel voor extra licht en ruimte boven
- Volledig gasloos
Beschikbare bouwnummers: 42
Levensloopbestendige drie-onder-één-kapwoning
Type LL21
Comfortabel en klaar voor de toekomst
- 131 – 134m² woonoppervlak
- Royale woonkamer met open keuken
- Volwaardige slaapkamer en badkamer op de begane grond
- Tuin op het noorden
- Standaard uitgerust met een thuisbatterij
- Op de verdieping twee slaapkamers en mogelijkheid voor een tweede badkamer
- Licht en comfort door dakkapel aan de voorzijde
Beschikbare bouwnummers: 39
Woningaanbod
Navigeer met de muis over de woningen en klik voor uitgebreide woninginformatie.







